top of page
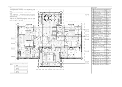
SIELSKI DOM MAZURY
Powierzchnia: 269 m.kw
Zakres: Sprawowanie nadzoru w imieniu inwestora nad całym procesem realizacji domu na Mazurach, pozwoliło nam zrealizować projekt w pełni zgodny z wytycznymi.



KONTAKT
bottom of page
Powierzchnia: 269 m.kw
Zakres: Sprawowanie nadzoru w imieniu inwestora nad całym procesem realizacji domu na Mazurach, pozwoliło nam zrealizować projekt w pełni zgodny z wytycznymi.


